Objektart
Adresse
Objektdaten
Details
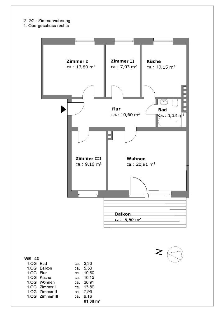
Zu kaufen ist eine vermietete 4-Zimmer Wohnung mit einer Wohnfläche von ca. 81,38 m² im 1.OG in Langenhorn. Die helle Wohnung verfügt über ein großes Wohnzimmer mit Balkon. Die weiteren drei Zimmer teilen sich auf in ein Schlaf- und zwei Kinderzimmer. Die Wohnung wurde 2017 umfangreich saniert, neues Badezimmer, neue Bodenbeläge, neue Türen, neue Heizkörper, neue Elektrik, neue Einbauküche, isolierverglaste Kunstoffenster usw. Zur Wohnung gehören ein Kellerraum sowie ein Fahrradabstellraum und die Beheizung erfolgt über Nahwärme (Blockheizkraftwerk). Die Mieteinnahmen betragen zurzeit EUR 1.092 kalt zzgl. EUR 269,- Betriebskosten inkl. Heizkosten. Das Hausgeld ist 306 EUR zzgl. 33 EUR Rücklagenbildung.
- vermietete 4-Zimmer Wohnung mit Balkon
- umfangreiche Sanierung aus 2017
- Kellerraum und Fahrradabstellraum
- Mieteinnahmen EUR 1.092 EUR kalt zzgl. EUR 269,- Betriebskosten (inkl. Staffelmiete)
- Energiebedarf: 51,8 kWh/(m²a) gültig bis 06/2027, Nah-/Fernwärme
Umgeben von den Stadtteilen Hummelsbüttel, Fuhlsbüttel und Norderstedt liegt im Norden Hamburgs der Stadtteil Langenhorn. Langenhorn ist wegen des angrenzenden Flughafens ein attraktiver Stadtteil mit guter Infrastruktur. Das Krohnstiegcenter, das LaHoMa Living Plaza und die U-Bahnhaltestelle "Langenhorn Markt" sind nur 100 m entfernt und in wenigen Gehminuten zu erreichen. Diverse Kindergärten und Schulen befinden sich in der nahen Umgebung. Des Weiteren bietet Langenhorn diverse Sportangebote und das Naturschutzgebiet Raackmoor für schöne Spaziergänge an.
Sehr gern lassen wir Ihnen ein ausführliches Exposé mit weiteren Fotos und dem Grundriss/Lageplan zukommen.
Bitte teilen Sie uns hierzu Ihre vollständigen Kontaktdaten (Anschrift und Telefonnummer) mit, Ihre Daten werden selbstverständlich vertraulich behandelt.
Alle Angaben über diese Immobilie beruhen auf Informationen, die uns der Auftraggeber zur Verfügung gestellt hat. Für die Richtigkeit, Aktualität und Vollständigkeit dieser Angaben übernehmen wir keine Gewähr. Irrtum und Zwischenvermittlung vorbehalten.
Weitere Objekte finden Sie unter: www.himgmbh.de
Ich bin damit einverstanden, dass mir Karten von Google angezeigt werden. Es gelten die Datenschutzbedingungen von Google (https://policies.google.com/privacy).
Ich bin einverstanden